Workforce housing project proposed in Lewes
Developer Preston Schell is working with Diamond State Community Land Trust to bring a workforce housing project to Lewes.
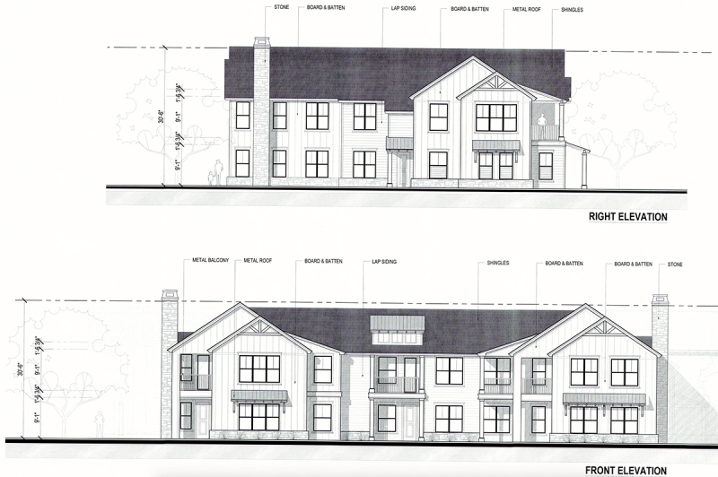
Schell recently submitted an application to Lewes for a 140-unit project along Savannah Road just west of the former railroad tracks on what is commonly known as the Beebe property. The plan calls for 14 10-unit buildings on nearly 8 acres. Schell and Diamond State Executive Director Helen McAdory updated Lewes Mayor and City Council on their progress May 13.
Under an arrangement with Diamond State, the land trust would purchase up to three units per building – up to 42 units – at direct cost. “There is no markup, no developer profit from those units at all,” Schell said.
The land trust would resell the units to qualified buyers who earn 50 to 80 percent of the area household median income of Sussex County – $68,700. The land trust can sell units below market value as a result of grants and favorable financing.
The remaining units would be sold by the developer, who agreed to market them to people earning 120 percent of AMI or less, but buyers who earn more would not be precluded from purchasing a unit, though. Schell said he’s confident the restrictions that will be put in place will not attract buyers who can afford $500,000 homes.
“The other restrictions within our covenants should limit the interest of wealthier residents of the local workforce,” he said. “I am building them at risk with my own money and financing. For that reason, I need to ensure the units are marketable and can be sold.”
Schell said he’s committed to pricing the units at prices affordable to those making 120 percent of area median income or less. “I am not willing to tell a household that is making 125 percent of area median income that they can’t buy one so long as they comply with all the other restrictions,” he said.
Schell said he took the best parts of several successful workforce housing programs to establish the restrictive covenants for his proposed community. A buyer must work in Sussex County at least 30 hours per week, and the unit must be their primary residence. If they choose to sell their unit, it must be sold to a buyer who also meets the same criteria. The owner is also prohibited from renting the unit for less than three months.
The covenant also accounts for residents who become disabled and cannot work or older residents who choose to retire. “Something I would’ve never thought of … is a guy getting kicked out of his house because he broke his leg and lost his job and no longer works 30 hours a week,” Schell said.
For retirees, he said, if a resident of the community has lived there for at least seven years and is 65 years and older, they may remain in their unit.
Schell is proposing the restrictive covenant be in place for 20 years. “Nobody does it indefinitely,” he said. The time periods we typically saw are 15 or 20 years. There were a couple that did 30 years, but none longer than that.”
Diamond State Community Land Trust Executive Director Helen McAdory said the residents of her company’s units would adhere to the same restrictive covenant, but would also have even stricter requirements to follow. Those restrictions would remain in place for at least 99 years, she said. “We focus on perpetual affordability,” she said.
In developing a plan for this project, Schell said the rental market around Lewes is fairly well met. “The thing that’s not being met is affordable for-sale units for the local workforce,” he said. “That’s what this project is trying to do.”
McAdory said she recently searched job postings in the Lewes area. Of the 116 jobs posted, 96 were at Beebe Healthcare. Of those 96, she said, all were within the 80 percent of area median income required to buy one of her units.
This project is new territory for the land trust, which previously worked primarily with single-family homes, McAdory said. There is a lot of interest in the project throughout the state, she said. “I see this as a pilot project,” she said. “What we are proposing here is quite common in other states, but it’s just we’ve never done it in Delaware.”
In terms of what the finished product will look like, Schell said, it will fit in with the character of Lewes. “There’s nothing about this development that screams these buildings are affordable,” he said. “I don’t want people to think they’re going to have the modern day version of Section 8 housing next to them, and it will somehow hurt their property values. This will not hurt property values.”
The project calls for 28 one bed, one bath units; 68 two bed, two bath homes; and 44 three bed, two bath residences. A homeowners’ association fee will be put in place, but, Schell said, it will be modest because there will be no clubhouse, pool or other expensive amenities to maintain.
Nick Roth is the news editor. He has been with the Cape Gazette since 2012, previously covering town beats in Milton and Lewes. In addition to serving on the editorial board and handling page layout, Nick is responsible for the weekly Delaware History in Photographs feature and enjoys writing stories about the Cape Region’s history. Prior to the Cape Gazette, Nick worked for the Delmarva Media Group, including the Delaware Wave, Delaware Coast Press and Salisbury Daily Times. He also contributed to The News Journal. Originally from Boyertown, Pa., Nick attended Shippensburg University in central Pennsylvania, graduating in 2007 with a bachelor’s degree in journalism. He’s won several MDDC awards during his career for both writing and photography. In his free time, he enjoys golfing, going to the beach with his family and cheering for Philadelphia sports teams.

























































