The Lewes Building Company, Showfield, and Historic Lewes: A Trifecta!
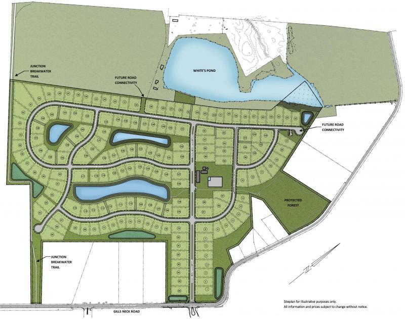
If you have been dreaming of building a custom home near historic Lewes at the Delaware beaches – we have great news! Showfield, a beautiful 132-acre community along Gills Neck Road, has released its first phase of home sites! This exquisite neighborhood offers 166 home sites situated within walking distance of downtown Lewes; and the Junction and Breakwater Trail. This exquisite custom home community will offer many amenities including a pool, natural gas, a 16-acre natural pond, a hiking trail and a historic barn which will be restored and transformed into the community clubhouse. Showfield is just outside of downtown Lewes and an easy bike ride to Lewes Beach, Cape Henlopen State Park, and nearby Rehoboth via the Junction and Breakwater Trail.
Showfield is an exciting opportunity for those in the market who want to build a truly custom home in a premier Lewes neighborhood reserved exclusively for custom homes. While some area builders offer “series” or “off-site” tract homes, this caliber of neighborhood deserves custom homes that reflect the character and rich architectural heritage of this historically significant town.
If you appreciate custom homes with timeless charm and appeal, and are interested in building a home in Showfield, we would love to meet with you to discuss your plans. The Lewes Building Company is a small custom builder with decades of experience and is the Delaware Beaches’ exclusive member of the Southern Living Custom Builder Program. If you love the homes you see each month in Coastal Living and Southern Living magazines, The Lewes Building Company is your builder. We only build custom coastal homes influenced by classic Southern architecture and have the expertise and resources to help you through each step of your custom home building project.
In addition to receiving personal attention from the owners of the company, another benefit of working with The Lewes Building Company is our long-standing relationship with Southern Living architects. We have access to thousands of custom house plans from the best architectural firms in the country, giving us and our clients the unique ability to work directly with Southern Living’s architectural and design teams to modify and customize the best plans available. If you have made the decision to build a home in a custom home neighborhood, why settle for a “series” or “off-site” tract home when you could have a truly custom home, designed by a nationally recognized architect like Frank Betz, Mitchell Ginn, or John Tee for the same or lower cost? Your home is a significant financial and emotional investment – so if you’ve already decided to buy a home site in a custom home community and not in a tract home community, then it only makes sense that your home should reflect that decision as well.
To see a few of our recent projects this holiday weekend, many of which are Southern Living house plans, please drive through Hawkseye also located on Gills Neck Road just down the road from Showfield (a map of Hawkseye is included on this page noting all of our Hawkseye projects). Once in Hawkseye, follow Peregrine Road to the rear of the community. Here you will find our veritable "neighborhood within a neighborhood" featuring several of Southern Living’s most loved custom homes: River Forest on home site 137, Shadymont on home site 157, Elberton Way on home site 155, Kousa Creek on home site 59 (the first Southern Living Showcase Home in the mid-Atlantic region!),Tucker Bayou on home site 57, and Wellstone Place on home site 56. All of our other projects on the Hawkseye map are non-Southern Living custom homes - we can build anything your heart desires.
Need quick delivery and desire new construction on a very large home site? The Bucknell Place, a 5 bedroom/4 full bath Southern Living custom house plan on home site 158 in Hawkseye is available now for fall delivery (MLS 707613). Home site 55, also in Hawkseye on Peregrine Road, is available for a lot/home package (MLS 707614). This home site offers unparalleled views of Wolfe Glade, and is one of the most private wooded perimeter home sites in the entire Lewes area currently available.
Please call our office at 877-797-TLBC (8522) – we look forward to discussing your new home project with you!



























































