Northstar hearing goes on for nearly seven hours
Editor’s note: This is the first of two stories about the Northstar public hearing. The second will cover the public’s reaction to the project. It will appear in an upcoming edition.
It was one of the longest public hearings in recent memory and the plethora of information provided could almost make one’s head spin.
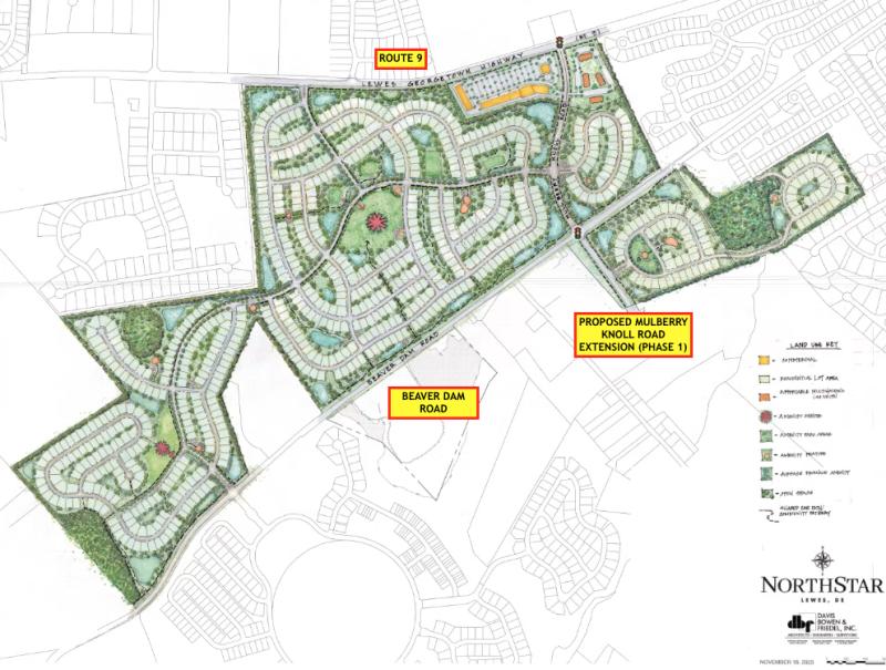
The Northstar Property LLC team made a two-hour-and-45-minute presentation on everything conceivable on the proposed Northstar mixed-used project on a 433-acre parcel between Route 9 and two sides of Beaver Dam Road west of Five Points during the Sussex County Planning & Zoning Commission’s July 17 meeting. The project is back on the agenda for a possible vote at the Wednesday, July 24 meeting. The meeting begins at 3 p.m.
The project book submitted by developer Northstar Property of Georgetown to the county contains 2,132 pages. The property owners, Delaware Farm LLC and RCTDE LLC, are located in Atlanta, Ga.
An overflow crowd packed the county administration building during the hearing.
Traffic concerns
Even before the public spoke, commissioners expressed concerns with the amount of traffic the project would generate, especially on Route 9.
“How can these roads handle huge communities like this?” Commissioner Bruce Mears asked Delaware Department of Transportation representatives attending the hearing.
“How can you say DelDOT is OK with it? When is there too much traffic?” Mears asked.
DelDOT Director of Planning Pam Steinbach said since the parcel is in the Henlopen Transportation Improvement District, a specific number of daily vehicle trips have been assigned to the parcel.
Ring Lardner, an engineer with Davis, Bowen and Friedel, representing the developer, said the projected number of approved vehicle trips are within the threshold of the property.
The projected number of daily trips is 13,359; the current Route 9 count is 17,000 average daily drips. On Beaver Dam Road, it’s 3,710 trips.
About Northstar
The project includes a subdivision of 758 single-family home lots on 379 acres, a commercial area of 96,000 square feet on 13 acres along Route 9 and an affordable apartment complex with 94 units on 8 acres also along Route 9.
There are four applications for the project, including rezoning applications from AR-1, agricultural-residential, to C-3, heavy commercial, and from AR-1 to MR, medium-density residential, and a conditional-use application for multifamily housing.
Open space includes two clubhouses and pools, three sports courts, four playgrounds and four open play areas. An east-west spine road through the middle of the community is proposed with a 28-foot wide roadway and an 8-foot shaded shared-use path.
Amenities would be required to be completed on or before 60% of building permits for the entire project.
Lardner said trails would link all open space areas.
When asked about a timeline for the project, Lardner said it’s impossible to predict at this time. He said it would be two years before a final site plan is completed.
The project would be built in phases, with Phase 1 in the western section of the property.
Sewer would be provided by Sussex County and water by Tidewater Utilities.
In Henlopen TID
Northstar is in the Henlopen TID and would be required to contribute funds per unit and per commercial square footage to a fund for road improvements in the district, besides other road improvements required.
Fees range from $3,882 per unit ($364,000) to $5,832 per lot ($4.4 million) for residential and from $3.25 to $5.52 per square foot for commercial space (approximately $400,000).
DelDOT does offer credit for some roadwork completed by a developer outside the scoop of normal road improvements required for a project.
Mulberry extension
The plan includes a developer-built phase of the Mulberry Knoll Road extension linking Mulberry Knoll and Cedar Grove roads with Route 9 at the traffic signal at the Vineyards, which is about a third of the length of the roadway.
A new traffic signal would be added to the Mullberry Knoll Road extension where it crosses Beaver Dam Road.
Commissioner Holly Wingate asked DelDOT representatives if they can ensure the public that the remainder of the extension would be built in a timely fashion. She said Lewes Fire Department representatives have expressed to her that the roadway will be critical to aid in response time by not having to travel on Route 9 or Plantation Road.
Steinback said the project is in DelDOT’s current capital transportation plan and will get funded. Preliminary engineering is scheduled to begin in 2026-27. “It’s going to be built,” she said.
“You need to make it a priority,” Wingate added.
Commissioner Gregory Scott Collins expressed concerns that the phased-in project would be completed ahead of planned DelDOT road improvements.
Lardner said all projects are ranked by the state and it’s possible the development could be ahead of those projects.
County assistant attorney Vince Robertson said the Mulberry Knoll Road extension project was included in Phase 3 of the development. “Can it be done quicker?” he asked. “There is nothing to confirm that will happen.”
Lardner said the road project would require the approval of DelDOT and the roadway will be deeded to DelDOT for public use.
Commissioners asked if a condition could be added to ensure the road’s construction. “We could figure out a condition,” Lardner said.
“This is a major piece of what the developer is planning to do. Can we ask DelDOT to expedite their process?” asked Commission Chair Bob Wheatley.
Affordable apartments
David Hutt, the developer’s attorney, started his presentation talking about the affordable apartment complex section.
Known as Willow at Northstar, the complex will have 94 units in three buildings.
“We asked these applications to be expedited to bring affordable housing to Sussex County as soon as possible. The need here is very acute,” Hutt said.
Hutt said there are always two concerns when affordable housing is proposed – the cost of land and the amount of time required to comply with the entitlement process. “The developer will donate the land for the affordable housing section,” Hutt said.
The Ingerman Group has been selected to develop the affordable apartment complex.
David Holden, principal with the group, said his company has developed more than 100 affordable housing projects in Delaware, Maryland, New Jersey and Pennsylvania. That includes the 60-unit Foster Commons project in Millsboro.
He said the complex would be constructed in two phases based on funding from the Delaware State Housing Authority.
Holden said the complex would have one-, two- and three-bedroom apartments with rent ranging from $700 to $1,200. Residents will have to qualify under a low-income tax program.
Ground-floor apartments would be handicapped-accessible.
In addition, he said, a full-time staff will coordinate programs based in the complex’s afterschool community room. Also, he said, the complex will included a resiliency center to provide electrical service in case of power outages as well as a playground and play area.
Holden added that the waiting list for Foster Commons is 659 families.
Overview of plan
Lardner said the community is a master-planned, in-fill project.
The parcel is designated as Coastal Area in the county's future land-use map where high-density development is permitted.
He said the community would be designed to be pedestrian- and bike-friendly with linkages throughout to other sections of the community and Route 9 and Beaver Dam Road. He said there would be 1.3 miles of shared-use paths within the community, nearly a mile of paths linking open spaces and 14 miles of sidewalk.
In addition, the plan includes more than three miles of shared-use path along Route 9, the new Mulberry Knoll extension and Beaver Dam Road. He said there would be one- to five-mile loops within the community with viewing pavilions, meadows and natural plantings. A natural path is being planned along a section of woodlands.
The plan includes 166 acres of open space with 81% of woodlands preserved and a minimum 30-foot vegetated/forested buffer around the perimeter.
He said a section of wetlands would remain undisturbed and a wildlife corridor would be provided on 63 acres of the open space.
Lardner said to screen the affordable section from the neighboring Lewes Crossing subdivision, a 30-foot forested buffer is proposed along the 30-foot buffer on the Lewes Crossing property for a total of 60 feet. He said the minimum setback from the property line would 100 feet.
More testimony
Hutt said the developer met with the Lewes Fire Department; the need for additional funding for equipment was discussed.
The developer has proffered to donate $50,000 per year for three years plus donate $500 from every building permit issued. Hutt said an additional $150,000 donation will come from the commercial area for a total of $679,000.
Hutt said Sage Policy Group, a consultant hired by the developer, projected that 79 school-aged children would live in the community at build out, with 40% living in the affordable apartments.
He said there would likely be a percentage of second-home purchases.
Hutt said school tax revenue projected to be generated by the project would be $1.25 million for Cape Henlopen School District and Sussex Technical High School.
Commissioner Wingate and the public questioned the projected child-age count. She said five elementary schools, the high school and two of three middle schools in the Cape district are at capacity.
























































