State police vehicle training course plan backed by county P&Z
A state police emergency vehicle operations training course planned across from a barracks being built on Patriots Way north of Millsboro was backed Jan. 7 by the Sussex County Planning & Zoning Commission.
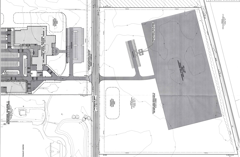
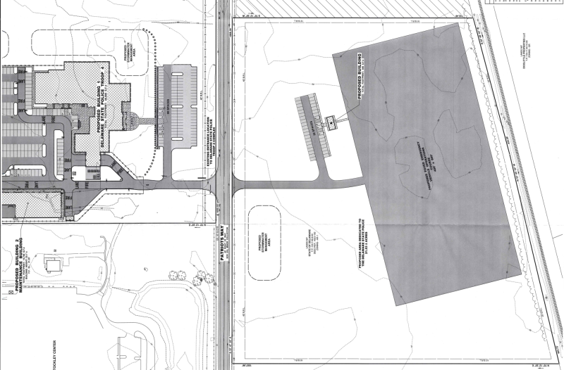
P&Z members voted 3-0 to recommend approval of a conditional use of land for the site on Patriots Way more than a half-mile south of Zoar Road. The request now goes to Sussex County Council for a final decision.
Jonathan Richard, an engineer with Becker Morgan Group, told the commission the course was originally planned adjacent to the barracks. It was included in a conditional use Sussex County Council approved in January 2024 for the barracks project.
The site for the 400-by-800-foot paved course was moved due to concerns about proximity to a nearby Delaware Commission of Veterans Affairs cemetery, said Richard. Training will avoid conflicts with cemetery operations.
The veterans agency objected as work began for the barracks on the west side of Patriots Way, Richard said. Rather than argue over the site, the training course will be relocated across the road, he said.
The course project includes a 24-space parking lot, storage building and a three-sided pavilion for classes on 21.5 acres of the 82-acre property.
The state Office of Management and Budget is the applicant for the conditional use sought for the site, which is in an AR-1, agricultural-residential, district.
The state estimates 1,988 vehicles per day drive on Patriots Way, according to a June 25 letter the Delaware Department of Transportation sent to the county. The training course is expected to add up to 50 daily vehicle trips, so no traffic impact study was required, according to DelDOT.
Capt. Gerald Windish Jr. told the commission the course would not have a lot of use and none at night.
“It’s not going to be in use a great portion of the time,” Windish said.
Vince Robertson, a lawyer for the commission, said the county does not typically place conditions on projects for police and other emergency service groups, and none were imposed on the state police course plan.
No public comments were offered on the project before or during the public hearing that preceded the vote.
Kevin Conlon came to the Cape Gazette with nearly 40 years of newspaper experience since graduating from St. Bonaventure University in New York with a bachelor's degree in mass communication. He reports on Sussex County government and other assignments as needed.
His career spans working as a reporter and editor at daily newspapers in upstate New York, including The Daily Gazette in Schenectady. He comes to the Cape Gazette from the Cortland Standard, where he was an editor for more than 25 years, and in recent years also contributed as a columnist and opinion page writer. He and his staff won regional and state writing awards.
Conlon was relocating to Lewes when he came across an advertisement for a reporter job at the Cape Gazette, and the decision to pursue it paid off. His new position gives him an opportunity to stay in a career that he loves, covering local news for an independently owned newspaper.
Conlon is the father of seven children and grandfather to two young boys. In his spare time, he trains for and competes in triathlons and other races. Now settling into the Cape Region, he is searching out hilly trails and roads with wide shoulders. He is a fan of St. Bonaventure sports, especially rugby and basketball, as well as following the Mets, Steelers and Celtics.






















































