The final piece of the Northstar development near Lewes was narrowly approved Oct. 7, by a Sussex County Council divided over the effects of such a large project on the community and the need for commercial space.
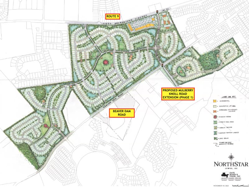
Council voted 3-2 to change the zoning from AR-1, agricultural-residential, to C-3, heavy commercial, for 12.7 acres along Route 9. The developer plans to construct several buildings totaling 96,118 square feet.
The county planning & zoning commission in October granted final approval for 758 single-family homes on the 420-acre site between Route 9 and Beaver Dam Road.
Council in May approved an amendment to the zoning map from AR-1 to MR, medium-density residential, and granted a conditional use for a 94-unit workforce housing project on 7.9 acres within the Northstar community.
That left the commercial section as the last portion to decide, and council was split on the issue during its Oct. 7 meeting.
Councilwoman Jane Gruenebaum strongly opposed the commercial portion of the plan, which could allow such uses as warehouses, hotels, motor vehicle sales, self-storage facilities and distribution facilities. The businesses have not yet been announced.
“Many of the C-3, heavy commercial, permitted uses do not conform to the neighborhood,” Gruenebaum said. “This is primarily a residential area with heavily used roads. The approved residential part of the development will add substantially to the daily trips and further burden Route 9 and Beaver Dam Road.”
She also cited concerns about unsightly commercial space and an increase in noise and light pollution that would affect nearby residences.
“I cannot approve this,” Gruenebaum said. “I vote no.”
Councilman Steve McCarron said the planned commercial space would serve the planned adjacent large residential development.
“I believe it’s important to have supportive infrastructure in these communities,” McCarron said, casting his vote in favor of the project.
The Sussex County Land-Use Reform Working Group last month agreed on 20 recommendations to redirect booming residential development, including this type of project, Councilman Matt Lloyd said.
“We just went through about eight months of the work group’s findings, which highlighted the need for mixed-use, planned residential communities, the concept of master planned communities,” Lloyd said. “And in an effort to allow people to live where they work, work where they live and to take traffic off Route 1 and keep it on Route 9, I’m going to vote yes for the reasons stated by planning & zoning and because of the testimony at the hearing.”
Council Vice President John Reiley said his fellow council members had valid points.
“But I think it’s important that perhaps we send a message that we’re tapping the brakes a little bit [on development], because I will ultimately come down on the side of Ms. Gruenebaum,” Rieley said. “And citing the reasons she gave, I’m going to vote no.”
That left Council President Douglas Hudson to break the tie.
“I agree with Mr. Lloyd and Mr. McCarron,” Hudson said. “I believe that with residential, you must have proper commercial and things that match, so, I will vote yes.”
Kevin Conlon came to the Cape Gazette with nearly 40 years of newspaper experience since graduating from St. Bonaventure University in New York with a bachelor's degree in mass communication. He reports on Sussex County government and other assignments as needed.
His career spans working as a reporter and editor at daily newspapers in upstate New York, including The Daily Gazette in Schenectady. He comes to the Cape Gazette from the Cortland Standard, where he was an editor for more than 25 years, and in recent years also contributed as a columnist and opinion page writer. He and his staff won regional and state writing awards.
Conlon was relocating to Lewes when he came across an advertisement for a reporter job at the Cape Gazette, and the decision to pursue it paid off. His new position gives him an opportunity to stay in a career that he loves, covering local news for an independently owned newspaper.
Conlon is the father of seven children and grandfather to two young boys. In his spare time, he trains for and competes in triathlons and other races. Now settling into the Cape Region, he is searching out hilly trails and roads with wide shoulders. He is a fan of St. Bonaventure sports, especially rugby and basketball, as well as following the Mets, Steelers and Celtics.


























































