Dewey Nalu expansion request sent to planning commission

Dewey Beach commissioners voted unanimously May 17 to refer to the planning commission a proposed expansion of a conditional use for Nalu.
Speaking briefly at the meeting, Nalu owner Regan Derrickson said town code has changed regarding parking requirements. In 2015, the board of adjustment denied his request for a variance on the number of parking spots at the property that contains Nalu and, at the time, Whiskey Beach.
In 2019, Dewey commissioners voted unanimously to approve an amendment of an existing conditional-use permit to demolish the building that formerly housed Whiskey Beach and was then known as the Ohana Room, and replace it with a patio.
“Since 2019, a lot has changed in Dewey Beach, with multiple business improvements across the town,” Derrickson wrote in his conditional-use expansion application. “In addition, the patron-use parking requirement has been adjusted, so Nalu LLC has applied for the expansion to return to the original square footage from the 2008 footprint.”
In 2022, commissioners voted unanimously to abolish the requirement for restaurants in the Resort Business-2 district with under 4,000 square feet of patron space to provide off-street parking. Nalu is located within the RB-2 district; the expansion would bring its total patron space square footage to just under 4,000 square feet.
The expansion plans meet all current code requirements, Derrickson said.
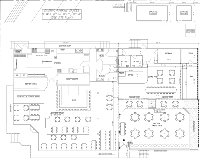
The proposed expansion would enclose a portion of the graveled outdoor area located behind the patio. The stage, currently located adjacent to the indoor bar, would be relocated to the new indoor dining area.
In his application, Derrickson said that despite Nalu’s efforts to maintain noise levels within code, “one neighbor has made a tremendous amount of unsubstantiated complaints with regard to noise levels.”
While Nalu is in compliance with the stage in its current location, Derrickson wrote, its relocation to a more interior location will hopefully end complaints going forward.
The addition would also include four, four-seat tables, a 20-seat table, a nine-seat bar, a new set of men’s and women’s bathrooms, and a storage area, according to submitted plans. It would connect to the outdoor patio via sliding doors.
The planning commission is scheduled to hold a public hearing and meeting at 5 p.m., Thursday, June 27. An agenda has not yet been posted.




















































