Sussex council approves state police vehicle training course plan
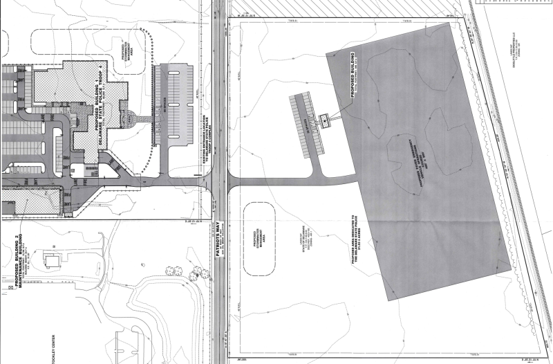
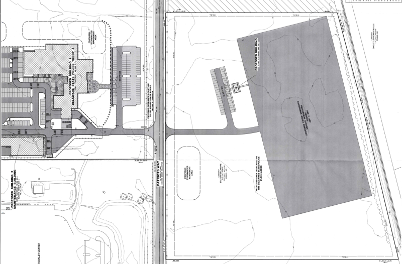
Sussex County Council approved a conditional use Feb. 10, allowing Delaware State Police to build an emergency vehicle operation course on a 21.5-acre site north of Millsboro.
The property on the west side of Patriots Way, more than a half mile south of Zoar Road, is across the road from the Troop 4 barracks currently under construction.
No comments were received by the county before or during the public hearing, after which council voted 4-0 to approve the use. Councilman Steve McCarron was absent.
The planning & zoning commission recommended approval of the project at its Jan. 7 meeting.
A state police vehicle training course was part of the barracks project approved in January 2024. Jonathan Richard, an engineer with the Becker Morgan Group, said the location of the course was moved across the road after the vote due to concerns about proximity to a nearby Delaware Commission of Veterans Affairs cemetery.
The project includes a 400-by-800-foot paved vehicle training course, 38 parking spaces, an 840-square-foot building containing a bathroom and storage, and an outdoor classroom.
The Delaware Office of Management and Budget was the applicant for the conditional use at the site, which is in an AR-1, agricultural-residential, district.
The state estimates 1,988 vehicles per day drive on Patriots Way, according to a June 25 letter the Delaware Department of Transportation sent to the county. The training course is expected to add up to 50 daily vehicle trips, so no traffic impact study was required, according to DelDOT.
Delaware State Police Capt. Gerald Windish Jr. told the P&Z commission at its Jan. 7 meeting that the course would not be used at night.
Kevin Conlon came to the Cape Gazette with nearly 40 years of newspaper experience since graduating from St. Bonaventure University in New York with a bachelor's degree in mass communication. He reports on Sussex County government and other assignments as needed.
His career spans working as a reporter and editor at daily newspapers in upstate New York, including The Daily Gazette in Schenectady. He comes to the Cape Gazette from the Cortland Standard, where he was an editor for more than 25 years, and in recent years also contributed as a columnist and opinion page writer. He and his staff won regional and state writing awards.
Conlon was relocating to Lewes when he came across an advertisement for a reporter job at the Cape Gazette, and the decision to pursue it paid off. His new position gives him an opportunity to stay in a career that he loves, covering local news for an independently owned newspaper.
Conlon is the father of seven children and grandfather to two young boys. In his spare time, he trains for and competes in triathlons and other races. Now settling into the Cape Region, he is searching out hilly trails and roads with wide shoulders. He is a fan of St. Bonaventure sports, especially rugby and basketball, as well as following the Mets, Steelers and Celtics.





















































