Bayhealth Sussex campus continues growing

The growth of Bayhealth’s Sussex campus will continue this fall with the groundbreaking for a new 75,000-square-foot inpatient rehabilitation facility.
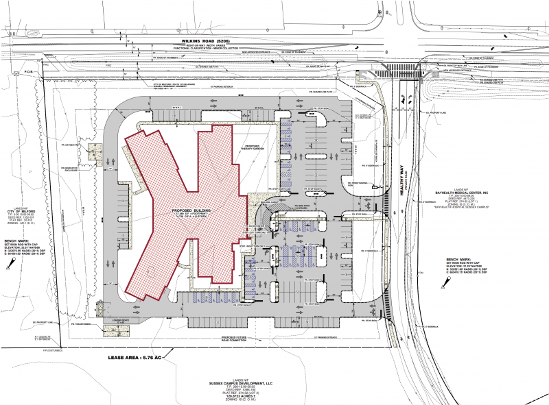
In partnership with Bayhealth, PAM Health will operate the two-story, 40-bed facility on a 5.76-acre section of the campus along Wilkins Road. It will offer a variety of services including physical, occupational and speech therapies.
PAM, which stands for Post-Acute Medical, already operates a 34-bed facility in Dover. Nationwide, PAM Health owns about 70 facilities and employs roughly 10,000 people.
“The hospital, since its opening, has been outperforming its initial projects for needed space and services within the four walls of the hospital,” said Anthony Lampasona, chief development officer for Catalyst Healthcare Real Estate, a national developer of all things healthcare.
Lampasona said the new facility will be built with capacity to add eight to 10 more beds if needed.
He expects to obtain necessary permits for construction by mid-October. If all goes to plan, dirt should be moving by the end of October, with steel coming out of the ground by the end of the year. Construction is expected to last 14 to 15 months.
Milford City Council unanimously approved a conditional use for the PAM facility at its Aug. 22 meeting. A conditional use was necessary because there are multiple healthcare uses on Bayhealth’s 129-acre campus.
Ted Werner, CEO of PAM Health Dover, said there will be some carryover of staff from the Bayhealth Sussex hospital, but there will be a need to hire additional staff.
“For a [facility] this size, you’re going to need several hundred individuals employed,” he said.
By moving 40 inpatient rehab beds out of Bayhealth’s hospital and into PAM Health’s facility, Werner said Bayhealth can better utilize its space.
“Those 40 beds could allocated for another use,” he said. “Considering what we’ve all been through with the pandemic, and looking at utilizing bed availability and need, [that space] could be utilized for something that could be vital.”
Mike Ashton, Bayhealth vice president of operations and Sussex campus administrator, said the partnership with PAM Health will benefit the community greatly.
“It allows us to continue to provide needed services to the community in this region as we continue to see increased growth,” he said. “We are very often at capacity. And while we’re trying to meet those needs and demands with outpatient expansions as well, we believe this will strongly allow us to grow and meet the acute-care needs as we free up those other 40 beds.”
The 440,000-square-foot hospital on the Bayhealth Sussex campus opened in 2019 with 128 beds. In 2020, Bayhealth and Nemours opened a 95,000-square-foot facility adjacent to the hospital along Route 30. The PAM Health facility will be the third building on the campus.
Nick Roth is the news editor. He has been with the Cape Gazette since 2012, previously covering town beats in Milton and Lewes. In addition to serving on the editorial board and handling page layout, Nick is responsible for the weekly Delaware History in Photographs feature and enjoys writing stories about the Cape Region’s history. Prior to the Cape Gazette, Nick worked for the Delmarva Media Group, including the Delaware Wave, Delaware Coast Press and Salisbury Daily Times. He also contributed to The News Journal. Originally from Boyertown, Pa., Nick attended Shippensburg University in central Pennsylvania, graduating in 2007 with a bachelor’s degree in journalism. He’s won several MDDC awards during his career for both writing and photography. In his free time, he enjoys golfing, going to the beach with his family and cheering for Philadelphia sports teams.























































