Lewes council to vote on townhouse project July 12
A hearing for the proposed Lewes Waterfront Preserve townhouse project June 22 brought out few comments from the public, as final approval for the 89-unit subdivision is set to go before mayor and city council Monday, July 12.
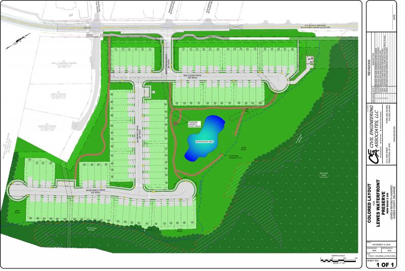
Planned for 34 acres off New Road near the Canary Creek bridge, the project has been in the pipeline for several years, submitted shortly after the city created annexation zoning districts to attract developers to propose plans within the city rather than with Sussex County.
Setting Properties Inc. did just that, taking advantage of townhouses being a permitted use to create a community unlike any other in the immediate area.
Janelle Cornwell, the city’s planning and development coordinator, said all lots in the plan are in compliance with city code. The developer is also providing additional on-street parking, sidewalks, streetlights and street trees throughout the development, she said.
The plan proposes more than 60 percent open space, a 50-foot buffer from wetlands, and no development within the floodplain.
When asked what amenities the developer proposes, Cornwell said the plan includes walking trails, benches, a gazebo and picnic tables. It does not include a clubhouse, pool, playground, tennis or pickleball courts, or other active amenities.
Ron Sutton of Civil Engineering Associates, the developer’s engineer, said the units will be 28 feet wide to allow for a first-floor master unit. The townhouses could be built to three stories or 36 feet, except for the units built along New Road, which will be limited to two stories.
The developer worked with the Lewes byways committee and agreed to a 30-foot landscaped and treed buffer. It will also add a shared-use path separated from New Road that will connect to a crosswalk just west of the New Road intersection with Schaffer Lane and Canary Creek Drive. The path will connect to the shared-use path being constructed as part of the Tower Hill development.
Doug Spelman of the nearby Canary Creek community was one of the few residents to speak at the hearing. He recognizes that the developer has met the requirements of the city code, but urges mayor and city council to change code so this type of development does not occur again.
“This development is a great example of how not to develop property in the City of Lewes,” he said. “This development is terribly out of character with what Lewes strives to be and represents. Despite its conformity with city code, it’s an absolute disappointment.”
The city will accept public comments on the project until 4 p.m., Thursday, July 8. To submit comments, go to http://ci.lewes.de.us/forms.aspx?FID=78.
Nick Roth is the news editor. He has been with the Cape Gazette since 2012, previously covering town beats in Milton and Lewes. In addition to serving on the editorial board and handling page layout, Nick is responsible for the weekly Delaware History in Photographs feature and enjoys writing stories about the Cape Region’s history. Prior to the Cape Gazette, Nick worked for the Delmarva Media Group, including the Delaware Wave, Delaware Coast Press and Salisbury Daily Times. He also contributed to The News Journal. Originally from Boyertown, Pa., Nick attended Shippensburg University in central Pennsylvania, graduating in 2007 with a bachelor’s degree in journalism. He’s won several MDDC awards during his career for both writing and photography. In his free time, he enjoys golfing, going to the beach with his family and cheering for Philadelphia sports teams.
























































