Lewes Planning Commission voted 5-3 to recommend denial of a waiver that would allow three dead-end streets in the Lewes Waterfront Preserve subdivision on New Road. Mayor and city council will make the final decision as early as February.
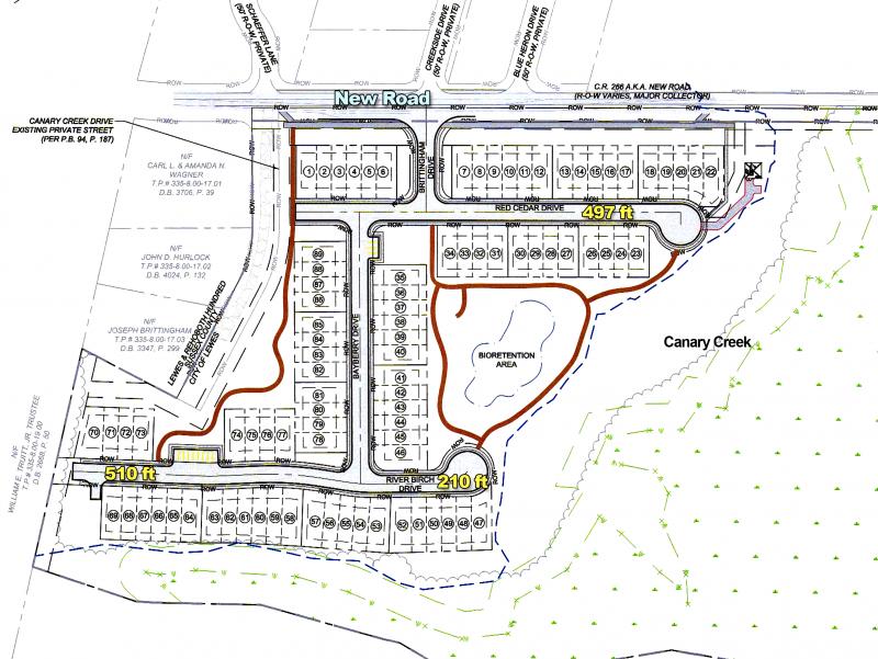
Setting Properties Inc. is seeking to build 89 townhouses on what’s known as the Brittingham property along Canary Creek. The developer’s plan shows three dead-end streets of 210 feet, 497 feet and 510 feet; all three exceed the city’s maximum length of 200 feet.
Commissioner Tom Panetta noted the 510-foot street that ends with a Y-turn could present a challenge for emergency vehicles and garbage trucks.
City engineer Charlie O’Donnell said the street was designed without a cul-de-sac because it’s a stub to future development on an adjacent farm.
Commissioner Melanie Moser said the developer should consider a temporary cul-de-sac that could be removed if the neighboring property is ever developed.
“We don’t know if that will occur this year, 50 years from now or never,” she said. “To leave it as it is forever would not be a good idea.”
Commissioner Sumner Crosby said his concern was with the number of homes serviced by the 510-foot section. According to the developer’s plans, 23 units would lie between the intersection and the dead end.
Tom West, Lewes’ planning consultant, said the Delaware Department of Transportation’s manual for road design says an appropriate length for dead-end streets is 500 to 1,000 feet, depending on density of the proposed development. A general rule of thumb for maximum length is that no more than 20 single-family homes should be served by a dead-end street, West said.
“In my experience, 200 feet is rather short, and I haven’t heard a rationale for why it’s that short,” West said. “I think the DelDOT standard is a more common standard.”
He recommended the planning commission discuss changing the length in the future.
Ron Sutton of Civil Engineering Associates, the developer’s engineer, said the community was developed under the city’s annexation-residential cluster zone. The goal, he said, was to reduce road frontage and reduce impervious surfaces.
“That’s why we created these clusters on cul-de-sacs and dead-end streets,” he said. “That’s the cluster concept.”
Crosby countered that nearly the entire buildable portion of the land is covered with development.
“I don’t really see how clustered it is,” he said. “The only part that’s not developed is where you’ve got the stormwater pond.”
Sutton said he would be open to connecting two of the cul-de-sacs, leaving only the 510-foot dead-end section.
Commissioners in favor of the waiver said the length is not a concern given what’s permitted by DelDOT and other municipalities.
“I live in Pilottown Village and we have lots of three-point turnarounds and have never had any issues,” said Commissioner Joe Hoechner. “The city has to look at the code to get our 200 foot [maximum] more in line with the state.”
Editor’s note: Lewes Waterfront Preserve was granted preliminary consent in August 2019 for 90 units. The developer’s final plan has lowered the units to 89.
Nick Roth is the news editor. He has been with the Cape Gazette since 2012, previously covering town beats in Milton and Lewes. In addition to serving on the editorial board and handling page layout, Nick is responsible for the weekly Delaware History in Photographs feature and enjoys writing stories about the Cape Region’s history. Prior to the Cape Gazette, Nick worked for the Delmarva Media Group, including the Delaware Wave, Delaware Coast Press and Salisbury Daily Times. He also contributed to The News Journal. Originally from Boyertown, Pa., Nick attended Shippensburg University in central Pennsylvania, graduating in 2007 with a bachelor’s degree in journalism. He’s won several MDDC awards during his career for both writing and photography. In his free time, he enjoys golfing, going to the beach with his family and cheering for Philadelphia sports teams.

























































