Mulberry Heights development set for final approval
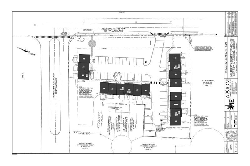
Milton Town Council is set to consider final approval of site plans for a proposed 17-unit townhouse development on a vacant lot at 500 Mulberry St.
Council will vote at its Monday, Aug. 5 meeting regarding the proposal, which would be built on land adjacent to Shipbuilder’s Village. The site plans were approved by the planning and zoning commission July 16.
The planning commission first heard the application in August 2023, but tabled it after asking the developer of the parcel, Mulberry Heights LLC, to provide additional details on lighting and landscaping plans, tree size, parking, water and sewer connections, and parking signs. That information was provided when the developer came back before the commission in July.
Access to the parcel would come from Mulberry Street. Plans show eight units on the east side of the property, with six units in the middle and three on the west side of the parcel. Per town code, each unit has two dedicated parking spaces.
The land at 500 Mulberry St. has been under consideration for development for nearly 20 years. In 2006 and 2015, proposed site plans were approved but development did not proceed, in 2006 due to financial issues, and in 2015 due to expiration of regulatory approval. In January 2022, Mulberry Heights LLC, formerly known as ECMM at Delaware LLC, brought forth a different plan, this one for a 14-unit development. However, those plans were changed, and the current 17-unit proposal was submitted.
Ryan Mavity covers Milton and the court system. He is married to Rachel Swick Mavity and has two kids, Alex and Jane. Ryan started with the Cape Gazette all the way back in February 2007, previously covering the City of Rehoboth Beach. A native of Easton, Md. and graduate of Towson University, Ryan enjoys watching the Baltimore Ravens, Washington Capitals and Baltimore Orioles in his spare time.






















































