Pelican Point developer has proposal for 15-acre parcel
The developer of Pelican Point 4-5 has plans to add more acreage to Phases 4 and 5 of the community.
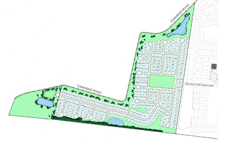
Cannon Road Investments has filed a subdivision plan for 219 single-family-home lots on 110 acres as part of previous phases either under construction or completed.
The developer wants to set aside a 15-acre parcel to relocate a stormwater management pond and construct a fenced-in dog park with seven parking spaces, and incorporate 30 single-family lots in Phase 5 of its building plan. Construction of the community along Indian Mission Road and both sides of Cannon Road near Long Neck has been ongoing. The final site plan for Phase 1 was approved in February 2014. Phases 2-5 were approved in July 2015.
During a Feb. 11 Sussex County Planning and Zoning Commission hearing, David Hutt, the applicant's attorney, said the developers and Sussex County did a land swap and ended up with a 15-acre parcel adjacent to Phase 5 of the construction plan.
Hutt said the 15-acre site would also provide community residents with open space for passive recreation.
Hutt said the original subdivision plan included seven phases with up to 688 lots, and 443 lots have been approved so far, not including the 30 proposed lots.
Residents expressed concern about the use of Pelican Point Boulevard adjacent to the clubhouse, sports courts and pool as access for construction vehicles. Hutt said the developer and state transportation officials would explore other options and possibly create a construction entrance.
The commission voted to defer a decision to a future meeting.


























































